Belwood Home
Love enjoying family moments altogether? Looking for voluminous spaces with all the features?
Belwood series brings you a knock down rebuild design with an open plan dining area and large spacious living area designed beautifully with all the minor details engraved all around to give you a quality time with your loved ones.
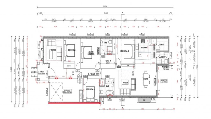
Belwood Home Of Floor Plan
Area Measurements
| Total Area (m2) | 318.73 |
| Total Landscape Area (m2) | 64.22 |
| Total Site Coverage (m2) | 182.37 |
| Ground Floor Width (m) | 22.04 |
| Ground Floor (m2) | 163.07 |
| Garage (m2) | 19.47 |
| Alfresco (m2) | 12.00 |
| Porch (m2) | 4.56 |
Our Inclusions
- Colored Driveway
- Flyscreens, Clothesline and so much more….
- 2700mm ceiling height throughout
- 40mm Caesarstone kitchen benchtop
- 900mm Omega appliances incl dishwasher
- Colorbond® fascia, gutter and downpipes in the standard builder’s range of colours
- Downlights through the house
- Ducted Air Conditioner
- Security Alarms
- 20mm Stonetop Vanity in bathrooms
- Tiling (from floor to ceiling) in Bathroom
- Floor coverings throughout incl tile stencil to alfresco and porch
