Roseload Home
If you love open spaces and fresh air, then this one is specifically designed for you. Roseland home designs are studded with the impeccable interior finish and innovative luxe features that can attract anyone. This masterpiece of the home, which is a dream for many, can now be yours and will indeed embrace your decision.
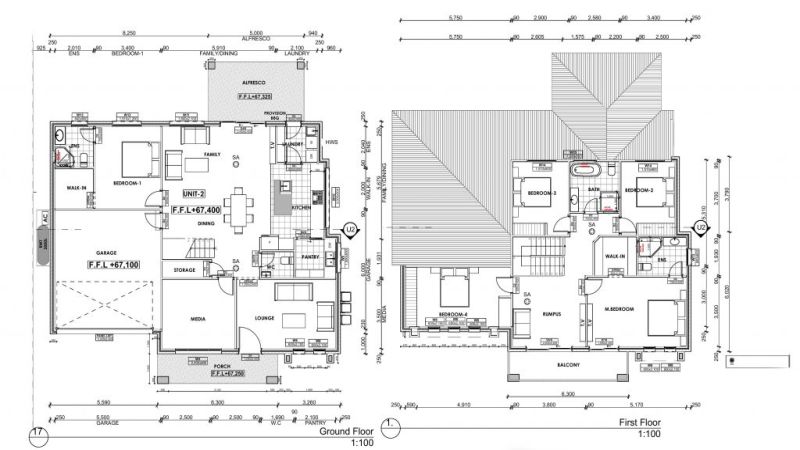
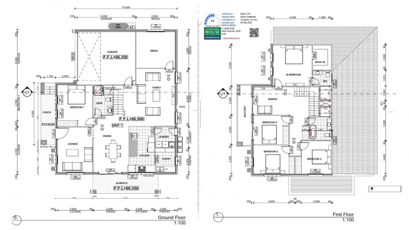
Roseload Home Of Floor Plan
Area Measurements
| Total Area (m2) | 143.00 |
| Garage (m2) | 35.82 |
| Porch (m2) | 9.54 |
| Alfresco (m2) | 13.45 |
| First Floor (m2) | 106.68 |
| Balcony (m2) | 9.54 |
| Ground Floor (m2) | 131.75 |
| Garage (m2) | 4.80 |
| Porch (m2) | 9.45 |
| Alfresco (m2) | 15.00 |
| First Floor (m2) | 107.90 |
| Balcony (m2) | 9.45 |
Our Inclusions
- Colored Driveway
- Flyscreens, Clothesline and so much more….
- 2700mm ceiling height throughout
- 40mm Caesarstone kitchen benchtop
- 900mm Omega appliances incl dishwasher
- Colorbond® fascia, gutter and downpipes in the standard builder’s range of colours
- Downlights through the house
- Ducted Air Conditioner
- Security Alarms
- 20mm Stonetop Vanity in bathrooms
- Tiling (from floor to ceiling) in Bathroom
- Floor coverings throughout incl tile stencil to alfresco and porch
