Alice Home
A home is all about moments and private life, both balancing each other. With the newly launched Alice series of double-storey homes, we make the dreams turn into reality for modern families. Alive home designs take you on a journey of comfort and elegance with the expert finish of living space on the ground level that extends to another level of the home, which is an expanded space lightened with sunlight.
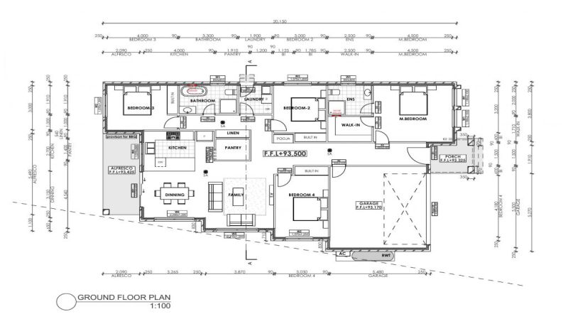
Alice Home Of Floor Plan
Area Measurements
| Total Area (m2) | 394.62 |
| Total Landscape Area (m2) | 113.43 |
| Land. Behind Building (m2) | 62.26 |
| Total Built Up Area (m2) | 206.00 |
| Ground Floor (m2) | 156.69 |
| Garage (m2) | 33.35 |
| Alfresco (m2) | 11.47 |
| Porch (m2) | 4.80 |
Our Inclusions
- Colored Driveway
- Flyscreens, Clothesline and so much more….
- 2700mm ceiling height throughout
- 40mm Caesarstone kitchen benchtop
- 900mm Omega appliances incl dishwasher
- Colorbond® fascia, gutter and downpipes in the standard builder’s range of colours
- Downlights through the house
- Ducted Air Conditioner
- Security Alarms
- 20mm Stonetop Vanity in bathrooms
- Tiling (from floor to ceiling) in Bathroom
- Floor coverings throughout incl tile stencil to alfresco and porch
